Добро пожаловать на http://vipplan.ru

Випплан Карталы - это тысячи проектов домов в нашем каталоге!

Вы всегда сможете найти для себя проект дома вашей мечты! Даже если этого не случилось, мы готовы в любую минуту предложить проект индивидуального дома.

Забыли пароль?
Вы еще не регистрировались?

Перейдите по ссылке ниже на страницу регистрации.

Регистрация...

Внимание!!!

В проектную документацию могут быть внесены изменения любой сложности, в соответствии в Вашими пожеланиями!

Полезные статьи

Утепление стен дома изнутри

Утепление стен дома изнутри – это не правильный метод теплоизоляции помещения и используется в самом крайнем случае, когда других вариантов уже не остается. Как правило, утепление стен изнутри выполняется по незнанию или вынужденно, поскольку, теплоизоляция внутренних помещений дома другим способом невозможна. Вопросы теплоизоляции необходимо решать на стадии проектирования дома или коттеджа, а не тогда когда дом уже построен и приходится исправлять совершенные ошибки по факту....

Свайно-ростверковый, буронабивной фундамент

Для объединения свай в общий фундамент устанавливают бетонные ростверки (железобетонные плиты). Устройство ростверка зависит от расположения, вида свай и конструкции здания. Ростверки могут быть монолитными, сборными или сборно-монолитными, также возможны безростверковые решения. ...

Проекты домов и коттеджей > Каталог проектов домов > Одноэтажный дом с тремя спальнями, парилкой и комнатой отдыха Vg3780

Одноэтажный дом с тремя спальнями, парилкой и комнатой отдыха Vg3780

Одноэтажный дом с тремя спальнями, парилкой и комнатой отдыха
Зарегистрируйтесь

Проект № Vg3780


Техническое описание
Общая площадь: 239.38 м2
Жилая площадь: 124.65 м2
Высота здания: 6.52 м
Размеры дома: 17.47м×24.62м
Кол-во комнат: 6
Цокольный этаж: нет
Гараж: нет
Мансарда: нет

Kонструкция
Фундамент: монолитная плита
Перекрытия: монолитные, деревянные балки
Материал стен: material_mon

Архитектурный раздел
Конструктивный раздел
АР+КР - 64 000 (Со скидкой 20%)
Одноэтажный дом с тремя спальнями, парилкой и комнатой отдыха, с габаритными размерами здания 7,42х13,52 м. Фундамент - мелкозаглубленная плита с ребрами под несущие стены. Наружные стены - газобетонные блоки с отделкой штукатуркой. Внутренние стены - газобетонные блоки. Перегородки - газобетонные блоки. Пол этажа - пол по монолитной плите Чердачное перекрытие - сборные ж/б плиты. Крыша - многоскатная. Кровля - битумная черепица. Окна - металлопластиковые.
Генплан застройки участка / Паспорт проекта 7000 руб / 10000 руб
Инженерный раздел (полный) 119500 руб
Смета на строительство 59750 руб
Теплотехнический расчет материалов стен Бесплатно
Стоимость проекта со незначительнми изменениями 74000 руб
Стоимость проекта со средними изменениями* 92000 руб
Стоимость проекта со значительными изменениями** 96700 руб

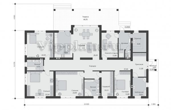
План первого этажа


Прихожая - 11,00 м2
Парилка - 9,00 м2
С/у - 3,50 м2
Душевая - 8,40 м2
Комната отдыха - 13,80 м2
Гостиная - 28,28 м2
Кухня - 14,26 м2
Спальня - 22,54 м2
Ванная - 6,00 м2
Спальня - 22,54 м2
Спальня - 23,69 м2
Ванная - 8,53 м2
Гардероб - 10,12 м2
Гостевая - 13,80 м2
Коридор - 37,44 м2
Бойлерная - 8,63 м2
Одноэтажный дом с тремя спальнями, парилкой и комнатой отдыха Одноэтажный дом с тремя спальнями, парилкой и комнатой отдыха Одноэтажный дом с тремя спальнями, парилкой и комнатой отдыха Одноэтажный дом с тремя спальнями, парилкой и комнатой отдыха
Внесение изменений и привязка к участку строительства

В любой из проектов от компании VIPplan - Карталы по вашему желанию могут быть внесены изменения в материалы стен, материалы наружной отделки дома, а также будет произведена адаптация проекта под конкретный регион строительства (с учетом грунтов региона, геологических особенностей вашего участка и местных климатических условий) - БЕСПЛАТНО !!! (кроме проектов со скидкой и проектов наших партнеров).

Любой из проектов, размещенных на сайте kartalyi.vipplan.ru мы можем выполнить из требуемых вам строительных материалов: ячеистый бетон (газобетон, пеноблок), керамоблок, кирпич, шлакоблок, бетонный блок, дерево (брус, клееный брус), каркасная технология (деревянный каркас, металлокаркас (ЛСТК)).

Фасад дома и его наружную отделку так же возможно выполнить с применением различных облицовочных материалов: структурной штукатурки, (с утеплителем и без), сайдингом (пластиковый или металлосайдинг), фиброплитами, кирпича.

 
6 Избранные
проекты

Доставка проектов по России: Москва (Московская область), Санкт-Петербург (Ленинградская область), Краснодар, Ростов-на-Дону, Ставрополь, Сочи, Волгоград, Новосибирск, Белгород, Брянск, Воронеж, Саратов, Хабаровск, Астрахань, Нальчик, Владикавказ, Екатеринбург, Тюмень, Самара, Нижний Новгород, Казань, Пермь, Уфа, Челябинск, Красноярск, Ханты-Мансийск, Иркутск, Курган, Оренбург, Омск, Томск, Барнаул, Новокузнецк, Кемерово, Абакан, Чита, Якутск, Южно-Сахалинск, Петропавловск-Камчатский и страны ближнего зарубежья: Белоруссия, Украина, Казахстан